| MODEL | Rotor Hızı (d/d) | Rotor Çapı (mm) | Besleme Büyüklüğü (mm) | Pim Sayısı | Motor Gücü | Kapasite (ton/saat) |
| KPD 1000 | 1200-1600 | Ø1000 | 0-15 | 76 | 90 kW | 10-12 |
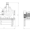
| MODEL | A | B | C | D | AĞIRLIK |
| KPD 1000 | 2720mm | 2900mm | Ø1360mm | 1600mm | 2200 kg |
Sertliği Mohs ölçeğinde 3 ün altında olan alçı, kalker, kalsit, kireç, dolamit gibi ürünler için kullanılan bir öğütücüdür. Aşındırıcılığı 3 ün üzerinde olan ürünler için gövde iç yüzeyi astar plakalarla kuvvetlendirilebilmektedir. Madencilik, kimya ve gıda sanayiinde özellikle tercih edilmektedir.
Öğütme işlemi karşılıklı yüzler üzerinde eş merkezli daireler halinde dizilmiş dikey pimlerin bulunduğu iki yatay çelik plaka arasında gerçekleşir. Ürün merkezde girer ve öğütülerek çeperlere savrulur. Elekten geçebilen ürünler makinayı tahliye eder.
Öğütücü pimler aşınmaya dayanıklı çelik döküm olarak imal edilir. Kapak pimleri yekpare çene şeklindedir. Rotor pimleri ise her biri ayrı ayrı rotor diskine cıvata ile monte edilir. Kolayca sökülüp değiştirilebilir.